連接件模型
Connector Model
Connector Model
聯系APAS / Contact us
- 地址:天津市西青經濟技術開發區賽達國際工業城A3-2.
- 郵箱:lxc@apas.com.cn
- 電話:022-87920088
- 傳真:請聯系網絡管理員
- 郵編:300385
- 咨詢熱線:13702119190(24小時服務熱線)
連接件模型
/ Connector Model

30系列鋁型材內置內連接件3d模型
產品描述 / Name
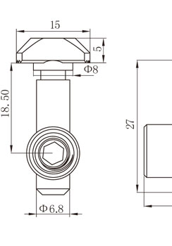
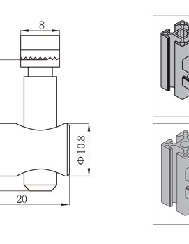
3030規格鋁型材內置內連接配件適用于該系列槽8規格型材框架直接或十字結構內置連接,可以下載配件SLDWORKS三維模型進行框架結構的設計組裝;
022-87920099
可以根據需求進行設計加工,提供上門安裝服務;可以根據特殊需求進行鋁型材開模定制。
* 免費提供工業鋁型材選型手冊 →點擊咨詢
內容來源:http://www.arc-wenwu.com.cn 作者:武將 發布日期:2020年04月07日 11時00分 閱讀次數:2614 次
|
該規格內置內連接配件適用于30系列槽8規格鋁型材內部結構連接,屬于隱蔽型緊固連接配件,主要用于鋁型材框架直角或十字連接,裝配前需要在鋁型材規定尺寸打安裝工藝孔,然后將配件T型頭放入另一型材槽坑內,T型頭的圓柱置入型材中心孔內鎖緊即可; |
![]() ![]()
|
| 鋁型材內置內連接配件具有兩種規格,分為90度和180度兩種規格;內置內連接件為電鍍鋼材質,表面經過鍍鋅或鍍鎳處理,很大程度增強了配件的耐腐蝕能力,物理強度高; |
|
槽型規格
|
適用型材
|
材質
|
訂貨編號
|
|
槽8
|
30×30
|
45#電鍍鋼
|
CE-BC8-90°
|
|
CE-BC8-180°
|
聯系APAS/ Contact us
天津艾普斯工業鋁型材股份有限公司
聯系電話:022-87920088
企業傳真:(避免惡意廣告)請聯系該企業網絡管理員
服務熱線:13702119190 (24小時服務熱線)
Q Q:534973906
企業郵箱: lxc@apas.com.cn
企業地址:天津市西青經濟技術開發區賽達國際工業城A3-2
聯系電話:022-87920088
企業傳真:(避免惡意廣告)請聯系該企業網絡管理員
服務熱線:13702119190 (24小時服務熱線)
Q Q:534973906
企業郵箱: lxc@apas.com.cn
企業地址:天津市西青經濟技術開發區賽達國際工業城A3-2
采購意向留言:* 為必填








-05精益管工作臺主圖.jpg)






QQ咨詢
電話聯系
聯系電話

在線留言
樣冊下載
